![]() |
![]() |
Toutes les études sont livrées avec plans et des notes de calcul circonstanciées.
Conception et calculs font appel à l'informatique et aux abaques issues de 60 années d'expérience.
Maitrise et indépendance complète vis-à-vis du choix des différents types de protection contre la corrosion
(Choisis en fonction de la température, de l’environnement, de la vitesse de déplacement, de la fréquence, …)
confiée à des partenaires spécialisés sous contrôle du BE.
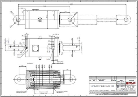
Plan dimensionnel
Composants choisis selon les températures d’utilisation
réalisés en fonction des objectifs des clients en termes de performance, de durée de vie, de vitesse de déplacement, etc.
Capacité également de réaliser des vérins dits « standards » en conformité avec les normes ISO.
Dossier de livraison de chaque vérin et ensemble hydraulique incluant au moins :
Ensemble des plans et schémas hydrauliques.
Notes de calcul
Nomenclatures
Certificats matière
Certifications
Procès verbaux de tests
Notices (fonctionnement, montage, ...)

![]()
![]() |
Descriptif succinct :Double effet Pression d’utilisation : 250 bars Effort développé par le vérin en traction : 40 tonnes Diamètre extérieur : 400 mm Longueur du vérin replié : 1 100 mm Longueur du vérin déplié : 2 300 mm Course du vérin : 1 200 mm Nombre d’étages : 3 |


